header_left
bajta_logo header
Kuće Stanovi Vikendice Zemljišta Poslovni
prostori
Najam Brza
Pretraga
header_right
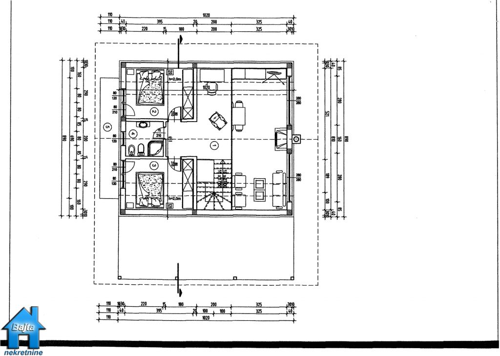
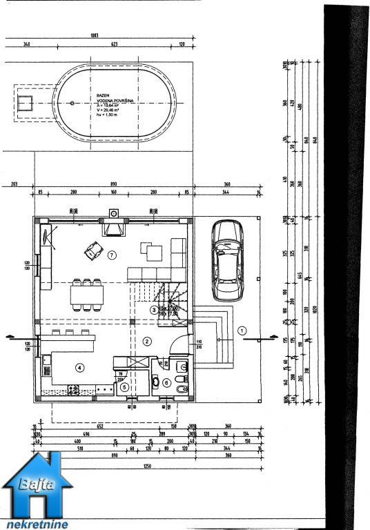
Šifra: Z872
Mjesto: Delnice
Veličina: građevinska parcela od 1114m2 sa započetom gradnjom ( i bazenom)
Cijena: 111.000kn (15.000 EUR)
Opis: U neposrednoj blizini Delnica prodaje se građevinsko zemljište na izuzetno lijepoj poziciji.Vlasnik posjeduje uredne papire: građevinsku dozvolu sa plaćenim komunalnim i vodnim doprinosom, projekt za bazen i kuću tlocrtnih dimenzija 12,50m x 10,20m (tloc. pov 127,50m2), stambene površine 160,67m2, a sastoji se od od prizemlja i visokog potkrovlja sa dnevnim boravkom, kuhinjom, tri spavaće sobe, dvije kupaonice,radne sobe i galerije.

Image Slider